產品品牌鼎實
產地揚中
產品型號DAYTJRB
定制是
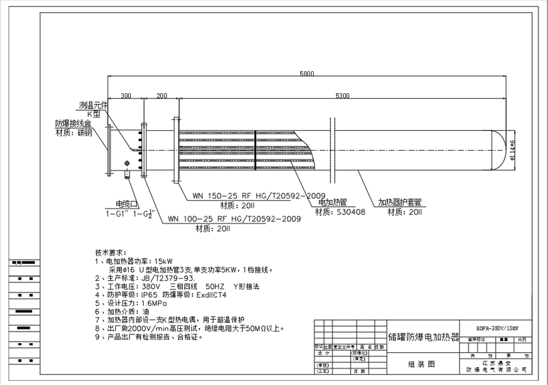
功率15KW
電壓380V
加熱介質空氣,液體,氣體
材質加熱管304 套管316L
管徑16mm
使用壽命5-10年
一、油田儲罐防爆電加熱棒 概述
一、油田儲罐防爆電加熱棒簡介
我公司研發的油田加熱器主要用于高凝稠油井和高寒地區油井集油管線和輸油管道的原油加熱傳輸,可清臘降粘,減小油流阻 力 ,提高原油進站溫度和油井產量,以保證原油具有必要的流動 性 ,也可在原油儲罐出口及輸油管道中繼續加熱等場合使用,能顯 著提高稠油井的產量,改善稠油的輸送狀況,具有高效, 節能安 全.壽命長、智能化以及無人值守等優點。
二、防爆電加熱棒組成結構
防爆電加熱棒是防爆電加熱管和套管組合而成。
三、防爆電加熱棒工作原理
防爆法蘭電加熱管(也稱插入式電加熱器):是采用U型管狀電熱元件,依據加熱不同介質設計規范,按照功率配置要求裝配上防爆法蘭接線盒,可以直接插入需加熱物料中也可配上套管使用,發熱元件工作時所發出的大量熱量傳導給被加熱介質使介質溫度升高,達到所需的工藝要求。當介質溫度達到工藝要求的設定值時,控制系統根據溫度傳感器信號,經PID 運算后調節電加熱器輸出功率,對發熱元件的電阻性負載實現溫度控制。使介質溫度均勻,達到所需要求;當發熱元件超溫或低液位時,發熱元件的聯鎖保護裝置立即切斷加熱電源避免發熱元件燒壞,延長使用壽命。
四、防爆電加熱棒技術特點
特點一:防爆設計滿足石油行業使用環境要求。
特點二:采用優質不銹鋼發熱芯體,經久耐用。
特點三:采用精確控溫方式,安全可靠。
特點四:電熱轉換效率>=95%,節能環保。
特點五: 無極溫控,精確調溫,可長時間 無人值守自動運行。
特點六:可自帶外套管二次導熱,發熱芯 體不直接接觸介質,安全可靠。
五、防爆電加熱棒典型的應用場合
1、化工行業的化工物料升溫加熱、一定壓力下一些粉末干燥、化工過程及噴射干燥。
2、碳氫化合物加熱,包括石油原油、重油、燃料油、導熱油、滑油、石臘等
3、工藝用水、過熱蒸汽、熔鹽、氮(空)氣、水煤氣類等等需升溫加熱的流體加溫。
4、由于采用先進的防爆結構,設備可廣泛應用在化工、軍工、石油、天然氣、海上平臺、船舶、礦區等需防爆場所。
二、油田儲罐防爆電加熱棒 產品實拍






同類其它產品參考







三、油田儲罐防爆電加熱棒 安裝現場



四、公司資質





五、銷售流程

六、聯系我們
江蘇鼎安防爆電氣有限公司是一家生產和銷售高品質電加熱設備的民營企業。擁有成套完善的生產設備和一支技術力量雄厚的研發及生產隊伍。主要生產環保節能的PTC電加熱器、防爆導熱油爐電加熱器、防爆管道加熱器、防爆風道加熱器、單頭加熱管、雙頭加熱管、翅片加熱管、防爆法蘭加熱管等。并為國內多家大型科研機構及出口企業配套生產各種電加熱設備。
購買須知:由于我公司產品非標定制,請親們聯系客服告訴我們詳細的工藝參數,我們會根據每一位客戶的要求免費為您設計出一套適合您的方案,快聯系我們吧!

親愛的客戶,我們將竭誠為您解決疑難問題!以下打 “ * ” 號的地方為必填選項,如果您有詳細產品需求請仔細填寫,我們會盡快與您聯系。